• Work
  • News
  • About
  • Awards
  • Publications
  • Partners
  • Jobs
  • Contact
ateliercetrei
  • Work
  • News
  • About
  • Awards
  • Publications
  • Partners
  • Jobs
  • Contact

Space Capsule - BAV 2018

The project’s foothold rests on Farrell and McNamara’s (2017) argument that everyone has the right to benefit from architecture, whose role is to give shelter to one’s body and to lift one’s spirit. “A beautiful wall forming a street edge gives pleasure to the passer-by, even if they never go inside. So too does a glimpse into a courtyard through an archway, or a place to lean against in the shade or a recess that offers protection from the wind and rain. [...] We are interested in going beyond the visual, emphasising the role of architecture in the choreography of daily life. We believe these qualities sustain the fundamental capacity of architecture to nurture and support meaningful contact between people and place.” All of the above is made possible through architecture’s ability to affect one’s mind and elicit cognitive states characterised by powerful attentional effects, generating significant repercussions in one’s brain processes. The project thus builds around a fundamental neurobiological idea: human beings have a limited attentional capacity.

As of lately, architecture nevertheless—and somewhat unfortunately, to a certain extent—has to share one’s limited attentional resources with the conditionings of digital life. A product of the contemporary society and a combination of Information and Communication Technologies (ICT) and social media, the digital acts like a technological capsule detached from one’s “daily sensorial experiences” (van Ditmar, 2011). This detachment produces a series of consequences, the most notable of which is the blurring of the boundaries between humans, space, and technology (De Cauter, 2004). The result is, as van Ditmar argues, a saturation of one’s milieu and a diminishing of attentional resources that could otherwise be assigned to other people or the environment. Even though one’s digital life provides increased connectivity and immediacy, we must agree with van Ditmar when she argues that technological capsules make humans “more and more isolated not only from the people but also from the environment. In this sense, Paul Virilio points out that even with a growing urbanisation, this paradoxically takes people proportionally away from the immediate proximity relations.”

Our project’s ambition is therefore to raise awareness towards the fragility of inter-human and human-place connections in contemporary society and architecture, on the one hand, and, on the other, act as a spatial experiment. The project proposes a triptych spatial strategy as follows:

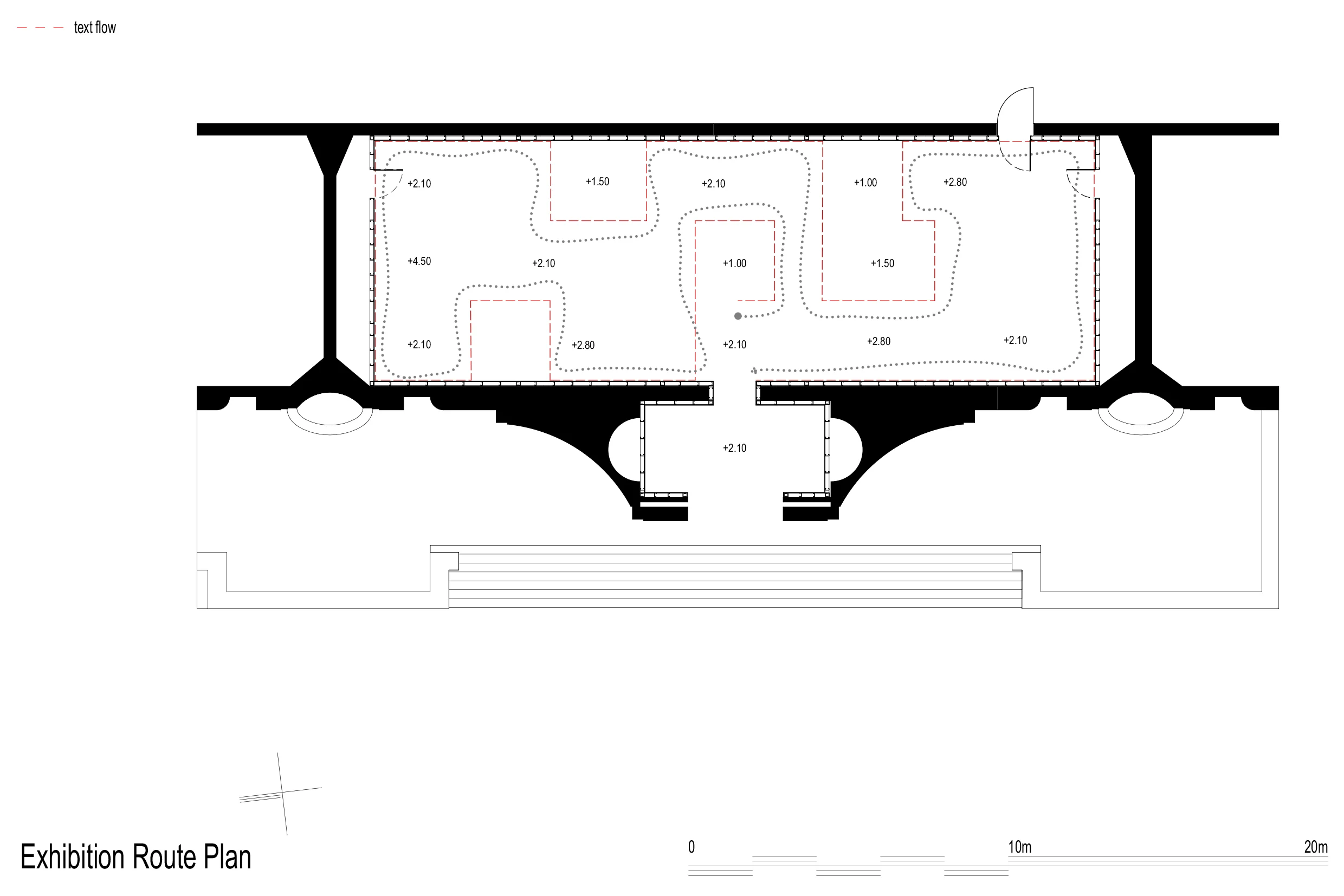
[1] Almost any space, whether public or private, is navigated horizontally with the “aid” of two of the most common architectural elements: the floor and the wall. The latter provides, as Koolhaas (2014) argues, structure and division of space and, as such, organises movement. Taking into consideration the literal sense of the 16th Venice architecture biennale theme, the project aims to free space by creating a “freespace” that avoids any and all space dividers separating the roof/ceiling from the ground/floor. The result is a simple rectangular free space.

[2] The free space is infinitely multiplied using floor-to-ceiling mirrors on all of the enclosing walls. The mirrors have a double purpose:

- to blur the boundaries of the physical space;

- to appeal to one’s narcissistic and increasingly individual social media alter-ego.

[3] Even though ceilings cover all indoor spaces, they do not necessarily help one navigate them, nor do they help one navigate outdoor spaces either, whether public or private. The project proposes an upsetting by creating a three-dimensional ceiling, much like an inverted abstract urban landscape whose purpose is thus to affect one’s attentional capacity and raise awareness of people and the immediate surroundings. This upsetting is achieved by implementing a set of uncomfortable ceiling heights, starting at 2.1m at the entrance and varying from as low as 1m to as high as 6.8m.

All of the three elements of the spatial strategy unify through colour, lighting concept, and text. As architects, by tradition, work with concrete materials, so does the project too: white coated plywood and stretch ceiling for the inverted abstract urban landscape, mirrors for the panelling of the existing walls, and rubber flooring for the floor—its all-white colour transforming the space into static interpretation of dynamic situations. All artificial lighting is realised through the stretch ceiling, while natural light will be guided in through the 6.8m high ceiling area that communicates with the skylights. Text flows clockwise, in one single row, starting from the volume that follows the entrance and delays one’s spatial perception, to propose an alternate spatial trajectory to free and ‘at will’ ones. As such, the visitor has two options upon entering:

[a] to scan a QR code (that redirects he or she to the project’s website where people can access all relevant information) and visit the project however he/she wishes; or

[b] to follow the pathway offered by the active lecture of the text.

When navigating the space, each of the two options leads to increased spatial awareness and an increased allocation of attentional resources to other visitors and the environment, due to the project’s capacity to create new circumstances, mediate interactions with/within free space, and promote its extension on a human level. The situation reflects Scalf and Beck’s (2008) affirmation that when “multiple neighbouring visual stimuli appear simultaneously, their representations interact in a mutually suppressive manner.”

Famous Romanian historian Nicolae Iorga (1936) called the inhabitants of the area between the Carpathian, the Danube, and the Black Sea “people of the earth,” alongside the “people of the sea” and “people of the steppes.” This trait translates the people’s character and appears in a series of novels that reflect the local people’s wise approach and their perfect sense of proportions. This condition is observable in the very form of our culture, from the “design” of the most commonplace objects to the shapes, sizes, and choice of materials that compose the built environment. As of lately, we witness a process of perversion and corruption of these formal elements due to an influx of unfiltered information, small goals, and an insatiable wish for uniformity. Even though, at first glance, there is nothing that would characterise the project as mirroring national perceptions, its attitude towards meaningful contact between people and place is what anchors the proposal in our culture and gives it poetic expression.

Design Team: Paul-Mihai Moldovan, Anamaria Moldovan, Gloria Gagu, Raluca Guranda, Diana Matei

Collaborators: Delfina Fantini van Ditmar, Oana Tiganea, Zsolt Nagy (SC Gordias SRL), Sabin Bors, Adrian Ovidiu Bucin, Adrian Urda 

 

Design Year: 2017-2018

Status: Competition 2nd place

Execution | Completion year: -

Location: Venice, Italy

Gross area: ca. 257 sqm

General Contractor: ateliercetrei

Text: ateliercetrei, Sabin Bors

Photographer[s]: -

S.C3.99.08.jpg
S.C3.99.09.jpg
S.C3.99.10.jpg
S.C3.99.11.jpg
S.C3.99.04.jpg
S.C3.99.12_landscape.jpg
S.C3.99.13_landscape.jpg
S.C3.99.14.jpg
S.C3.99.15.jpg
S.C3.99.16_landscape.jpg
S.C3.99.01.jpg
S.C3.99.02.jpg
S.C3.99.03.jpg
S.C3.99.17.jpg
S.C3.99.18.jpg
S.C3.99.06.jpg
S.C3.99.05.jpg
S.C3.99.07.jpg